Ogłasza I pisemny nieograniczony przetarg na wynajem lokalu użytkowego przeznaczonego na prowadzenie działalności gastronomicznej, zlokalizowanego w budynku w Kołobrzegu

Politechnika Poznańska

ogłasza I pisemny nieograniczony przetarg na wynajem lokalu użytkowego przeznaczonego na

prowadzenie działalności gastronomicznej, zlokalizowanego w budynku przy

ul. Obrońców Westerplatte 38 w Kołobrzegu

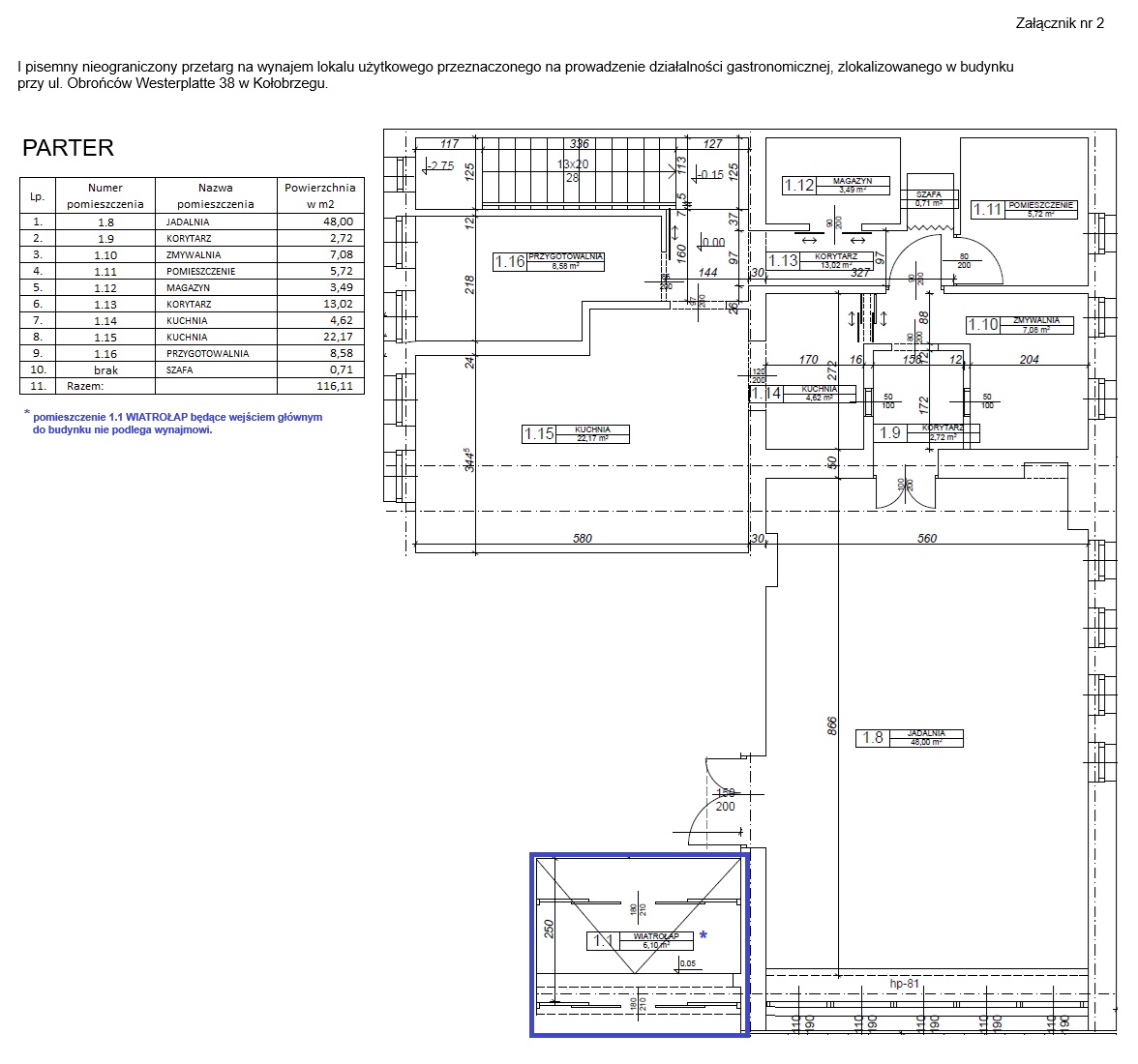
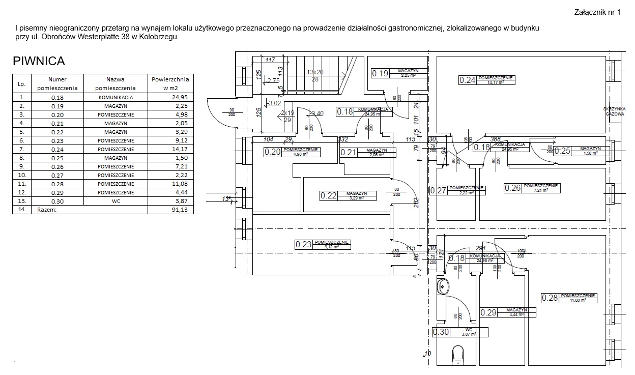
  1. Przedmiotem najmu jest lokal użytkowy, na który składają się pomieszczenia kuchenne i magazynowe oraz jadalnia na prowadzenie działalności gastronomicznej, z wyłączeniem sprzedaży napojów alkoholowych.
  2. Oznaczenie i opis nieruchomości:
    1. Miejscowość: 78-100 Kołobrzeg
    2. Ulica i nr domu: ul. Obrońców Westerplatte 38
    3. Numer działki i obręb: 37, 0004
    4. Numer KW: KO1L/00012604/6
    5. Forma władania: własność Wynajmującego
    6. Powierzchnia najmu: 207,24 m2
  3. Okres obowiązywania umowy: 36 miesięcy.
  4. Najemca ponosi koszty napraw i remontów, z wyłączeniem awarii instalacji będących częścią budynku.
  5. Cenę wywoławczą stanowi wartość rocznego czynszu za najem lokalu, która wynosi 66 731,76 zł netto. Złożona w ofercie wysokość czynszu nie może być niższa niż cena wywoławcza. Złożenie oferty zawierającej propozycję wysokości czynszu niższej niż cena wywoławcza spowoduje odrzucenie oferty.
  6. Niezależnie od czynszu z tytułu najmu lokalu Najemca zobowiązany będzie do uiszczania opłat z tytułu bieżących kosztów eksploatacyjnych takich jak energia elektryczna, gaz, woda i odprowadzenie ścieków.
  7. Najemca doposaży na własny koszt wynajęte pomieszczenia w urządzenia niezbędne do prowadzenia działalności gastronomicznej przez okres trwania umowy, a po jej wygaśnięciu pozostaną one własnością Najemcy.
  8. Urządzenia będące własnością Wynajmującego zostaną protokolarnie przekazane Najemcy, który będzie je wykorzystywać zgodnie z przeznaczeniem.
  9. W miejsce zgubionego, zniszczonego lub skradzionego wynajmowanego sprzętu Najemca zobowiązuje się odkupić sprzęt tej samej klasy.
  10. Warunkiem przystąpienia do przetargu jest wniesienie wadium, które wynosi 7 000,00 zł słownie: pięć tysięcy złotych 00/100.
  11. Wadium może być wniesione w: 
    1. pieniądzu na rachunek bankowy Politechniki Poznańskiej nr: 

      PL39 1090 1362 0000 0001 4382 6909 

      z zaznaczeniem celu wpłaty: „Wadium przetarg na wynajem lokalu w budynku przy ul. Obrońców Westerplatte 38 w Kołobrzegu”;

    2. gwarancji ubezpieczeniowej;
    3. gwarancji bankowej.
  12. Wadium wniesione przez uczestnika przetargu, który przetarg wygrał, zalicza się na poczet kaucji, a w dalszej kolejności na poczet czynszu najmu.
  13. Umowa najmu będzie obowiązywała 3 lata od dnia zawarcia umowy. 
  14. Politechnika Poznańska uprzedza, że w pierwszym kwartale roku 2026 planowana jest modernizacja instalacji przeciwpożarowej obejmująca wszystkie piętra budynku. Termin wykonania modernizacji może ulec zmianie.
  15. Przy wyborze najkorzystniejszej oferty komisja przetargowa będzie brała pod uwagę jako jedyne kryterium zaoferowaną cenę.
  16. Komisja przetargowa nie zakwalifikuje oferty do części niejawnej przetargu, jeżeli:
    1. zostanie złożona po wyznaczonym terminie;
    2. nie będzie zawierała danych, jakie zgodnie z warunkami przetargu powinna zawierać oferta lub dane te będą niekompletne;
    3. będzie nieczytelna lub budząca wątpliwości co do jej treści.
  17. Oferta powinna zawierać:
    1. imię, nazwisko i adres uczestnika lub nazwę albo firmę i siedzibę;
    2. dane kontaktowe (telefon, mail);
    3. odpis z właściwego rejestru lub z centralnej ewidencji i informacji o działalności gospodarczej jeżeli odrębne przepisy wymagają wpisu do rejestru lub ewidencji; w przypadku spółki cywilnej wymagana jest umowa spółki;
    4. oświadczenie, że uczestnik zapoznał się z warunkami przetargu i przyjmuje te warunki bez zastrzeżeń;
    5. oświadczenie o zapoznaniu się ze stanem technicznym lokalu;
    6. oferowaną wysokość stawki czynszu netto powierzchni całkowitej lokalu w wymiarze rocznym, wyrażoną w PLN, do dwóch miejsc po przecinku - zapis liczbowy i słowny oferowanej stawki
    7. proponowany rodzaj działalności - krótki opis wraz z projektem menu;
    8. dołączony dowód wpłacenia wadium lub gwarancję bankową albo ubezpieczeniową;
    9. czytelny podpis oferenta na każdym składanym dokumencie oraz datę sporządzenia oferty.
  18. Oferty należy składać w zamkniętej kopercie formatu A4, ostemplowanej bądź podpisanej w miejscu zaklejenia, pod adresem: Politechnika Poznańska, Dział Gospodarczy, Poznań, pl. M. Skłodowskiej-Curie 5, pokój 09, w terminie do dnia 15 października 2025 r. do godz. 10:00.z napisem na kopercie: „Przetarg na wynajem lokalu użytkowego przeznaczonego na prowadzenie działalności gastronomicznej zlokalizowanego w budynku przy ul. Obrońców Westerplatte 38 w Kołobrzegu”.
  19. Otwarcie ofert nastąpi w dniu 15 października 2025 r. o godz. 11:00 w siedzibie Politechniki Poznańskiej w Poznaniu przy pl. Marii Skłodowskiej-Curie 5, pokój 09.
  20. Oferenci mogą dokonać wizji przedmiotowego lokalu po uprzednim umówieniu telefonicznym z Panią Renatą Ziemiańską (nr telefonu 61 665-2565). Pod tym numerem można również uzyskać szczegółowe informacje odnośnie lokalu.
  21. Politechnika Poznańska zastrzega sobie prawo unieważnienia przetargu, jeżeli:
    1. w przetargu nie złożono żadnej oferty niepodlegającej odrzuceniu,
    2. cena oferty najkorzystniejszej w przetargu jest niższa od ceny wywoławczej,
    3. wystąpiła istotna zmiana okoliczności powodująca, że przetarg nie leży w interesie publicznym, czego nie można było wcześniej przewidzieć,
    4. przetarg obarczony jest niemożliwą do usunięcia wadą, uniemożliwiającą zawarcie ważnej umowy.
  22. Politechnika Poznańska ma prawo zamknięcia przetargu lub aukcji bez wybrania oferty
  23. O wynikach przetargu oferenci będą zawiadomieni w formie pisemnej.
  24. Jeżeli oferent, którego oferta zostanie wybrana jako najkorzystniejsza odmówi podpisania umowy lub podpisanie umowy nie będzie możliwe z przyczyn leżących po jego stronie, Politechnika Poznańska dokona zatrzymania wadium.

 

Załączniki:

  1. Plan układu pomieszczeń piwnicy.
  2. Plan układu pomieszczeń parteru.
  3. Wykaz wyposażenia.
  4. Formularz ofertowy.
  5. Proponowane zapisy umowy.